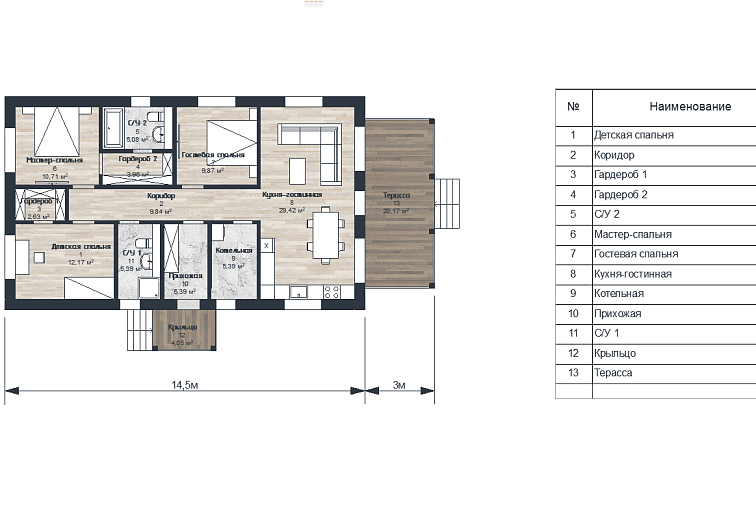
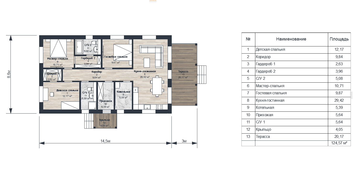
3комнаты
1мастер-спальня
2санузла
терраса 20,72м2
2гардеробные
Дата размещения: 20.01.2025
Дата размещения: 25.01.2025
Дата размещения: 19.03.2025
Дата размещения: 11.04.2025
Дата размещения: 03.06.2025
Дата размещения: 23.10.2025
Дата размещения: 03.04.2026