В-1/70

Площадь
70.27 м²
Размеры
11 х 8 м
  • 1санузел

  • от 5 200 000 ₽
  • Описание

    База: 5 200 000
    • фундамент
    • стены
    • крыша с утеплением
    • кровля металлочерепица
    • окна ПВХ белые
    • снегозадержание
    • водосточная система
    • подготовка под крыльцо и террасу
    • входная дверь с терморазрывом

    White box: 7 100 000
    • внутренние коммуникации:
       - устройство канализации
       - устройство водопровода
       - теплый пол + радиаторы
       - электричество 50 точек
    • наружные коммуникации:
       - септик
       - щиток электрический
       - скважина 30м .
    • грунтовка, механизированная штукатурка по маякам
    • полусухая стяжка по маякам.

    Характеристики

    Тип дома Дома из вирилита
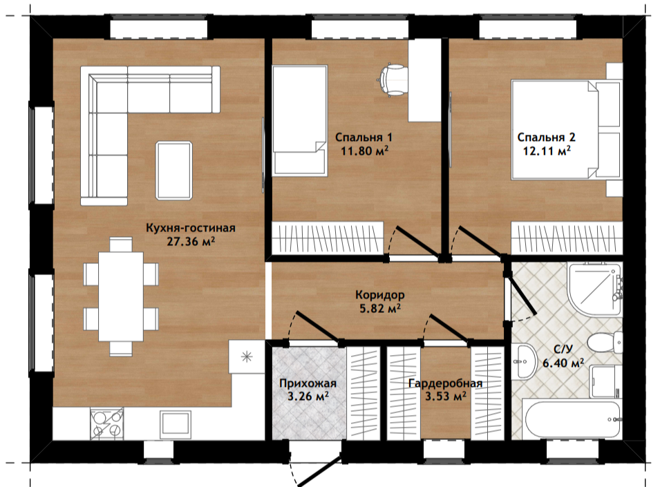
    Общая площадь дома, м² 70.27
    Размеры дома, м 11 х 8
    Количество этажей 1
    Количество спален 2
    Количество санузлов 1
    Площать кухни 27.36
  • Планировка

    Хотите изменить планировку?

    Это совсем просто! Назначьте встречу с нашим архитектором, на основании ваших идей он создаст индивидуальную планировку.

Что входит в стоимость

      • Фундамент (тип фундамента определяется по результатам проведенных геодезических и геологических исследований)

      • Закладные под коммуникации

      • Приемка инженером технического надзора

      • Рабочий проект (АР, КР)

      • Стенокомплект

      • Устройство армирующего пояса

      • Теплая кладочная смесь (перлитовый раствор)

      • Доставка стенового комплекта

      • Сборка стенового комплекта

      • Приемка инженером технического надзора

      • Покрытие кровли - металлочерепица с полимерным покрытием Satin

      • Крыша конструкции “Ферма”

      • Утепление 250 мм UMATEX Termo

      • Универсальная диффузионная мембрана

      • Пароизоляционная пленка

      • Комплектующие, фурнитура

      • Трубчатая система снегозадержания

      • Техническая вентиляция

      • Приемка инженером технического надзора

      • ПВХ-профиль 70 мм и фурнитура

      • Комплектующие

      • Стеклопакеты энергосберегающие многофункциональные

      • Входная дверь

      • Монтаж

      • Приемка инженером технического надзора

      • Организация проживания рабочих (бытовка)

      • Организация биотуалета

      • Подключение бытовки к электричеству

      • Вывоз мусора

Менеджер
Смарт Арболит
Ведущий специалист
Консультация специалиста
Мы свяжемся с вами в течение 5 минут
Менеджер
Смарт Арболит
Ведущий специалист
Оставить заявку
Мы свяжемся с вами в течение 5 минут
Менеджер
Смарт Арболит
Ведущий специалист
Заказать расчет
Мы свяжемся с вами в течение 5 минут