Simple 70

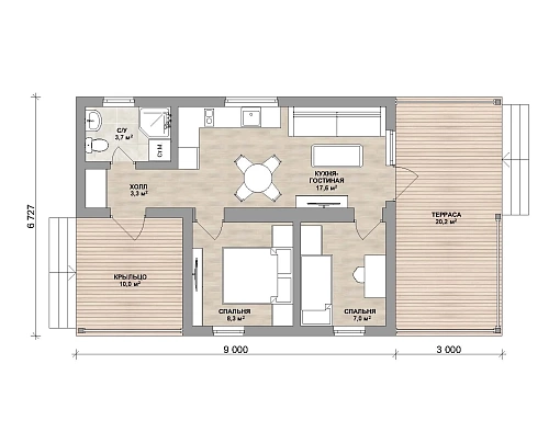
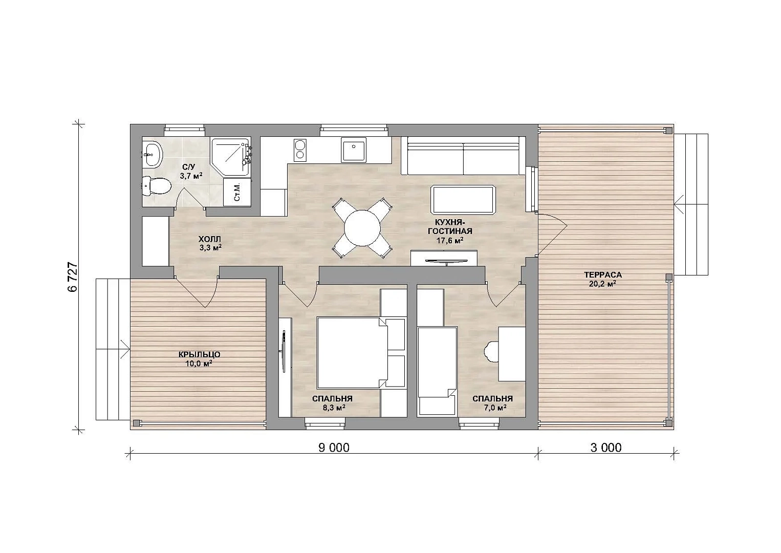
Площадь
71 м²
Размеры
12*6,8 м
  • 2комнаты

  • 1санузел

  • терраса 20,2м2

  • от 3 700 000 ₽
  • Описание

    База 3 700 000
        
    фундамент    
    стены    
    крыша с утеплением    
    кровля профнастил    
    окна ПВХ белые    
    снегозадержание    
    водосточная система        
    фасад     
    входная дверь    
        
        
    White box  6 500 000    
        
    внутренние коммуникации:    
    устройство канализации    
    устройство водопровода    
    теплый пол + радиаторы    
    электричество 50 точек    
        
    наружные коммуникации:    
    септик    
    щиток электрический    
    скважина 30м    

    Характеристики

    Тип дома Модульные дома
    Общая площадь дома, м² 71
    Размеры дома, м 12*6,8
    Количество этажей 2
    Количество комнат 2
    Количество спален 2
    Количество санузлов 1
    Площать террасы 20,2
  • Планировка

    Хотите изменить планировку?

    Это совсем просто! Назначьте встречу с нашим архитектором, на основании ваших идей он создаст индивидуальную планировку.

  • Дизайн интерьера

Что входит в стоимость

      • Забивные железобетонные сваи

      • Закладные под коммуникации

      • Приемка инженером технического надзора

      • Рабочий проект (АК,КР)

      • Стенокомплект

      • Наружная отделка - планкен с покраской в 2 слоя на производстве

      • Внутренняя отделка - имитация бруса с покраской в 1 слой

      • Чистовой настил пола - кварцвинил/керамогранит

      • Доставка

      • Сборка

      • Настил кровли – профнастил крашенный

      • Комплектующие

      • Приемка инженером технического надзора

      • ПВХ-профиль 70 мм и фурнитура

      • Стеклопакеты энергосберегающие многофункциональные

      • Входная дверь

      • Комплектующие

      • Монтаж

      • Приемка инженером технического надзора

      • Организация проживания рабочих (бытовка)

      • Подключение бытовки к электричеству

      • Организация биотуалета

      • Вывоз мусора

Менеджер
Смарт Арболит
Ведущий специалист
Консультация специалиста
Мы свяжемся с вами в течение 5 минут
Менеджер
Смарт Арболит
Ведущий специалист
Оставить заявку
Мы свяжемся с вами в течение 5 минут
Менеджер
Смарт Арболит
Ведущий специалист
Заказать расчет
Мы свяжемся с вами в течение 5 минут