Прованс 73

Площадь
73 м²
Размеры
8,5х7,2 м м
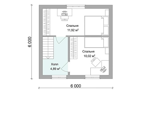
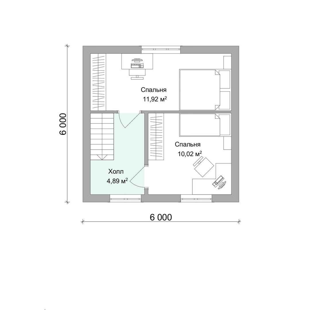
  • 2комнаты

  • 1санузел

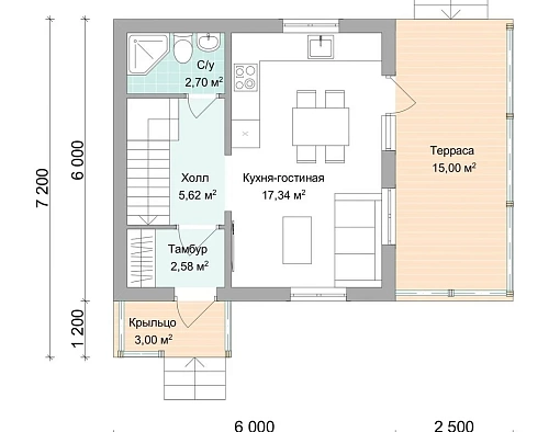
  • терраса 15,00м2

  • от 5 100 000 ₽
  • Описание

    База 4 450 00
        
    фундамент    
    стены    
    крыша с утеплением    
    кровля профнастил    
    окна ПВХ белые    
    снегозажержание    
    водосточная система        
    фасад     
    входная дверь    
        
        
    White box  6 700 000    
        
    внутренние коммуникации:    
    устройство канализации    
    устройство водопровода    
    теплый пол + радиаторы    
    электричество 50 точек    
        
    наружные коммуникации:    
    септик    
    щиток электрический    
    скважина 30м    

    Характеристики

    Тип дома Панельно-Каркасные дома
    Общая площадь дома, м² 73
    Размеры дома, м 8,5х7,2 м
    Количество этажей 2
    Количество комнат 2
    Количество спален 2
    Количество санузлов 1
    Площать террасы 15,00
  • Планировка

    Хотите изменить планировку?

    Это совсем просто! Назначьте встречу с нашим архитектором, на основании ваших идей он создаст индивидуальную планировку.

  • Дизайн интерьера

Менеджер
Смарт Арболит
Ведущий специалист
Консультация специалиста
Мы свяжемся с вами в течение 5 минут
Менеджер
Смарт Арболит
Ведущий специалист
Оставить заявку
Мы свяжемся с вами в течение 5 минут
Менеджер
Смарт Арболит
Ведущий специалист
Заказать расчет
Мы свяжемся с вами в течение 5 минут