К-2/150

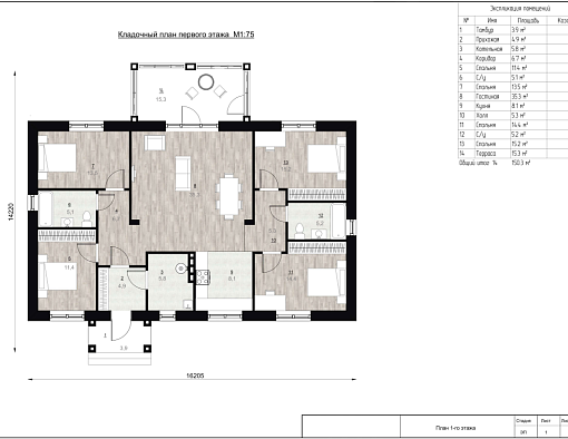
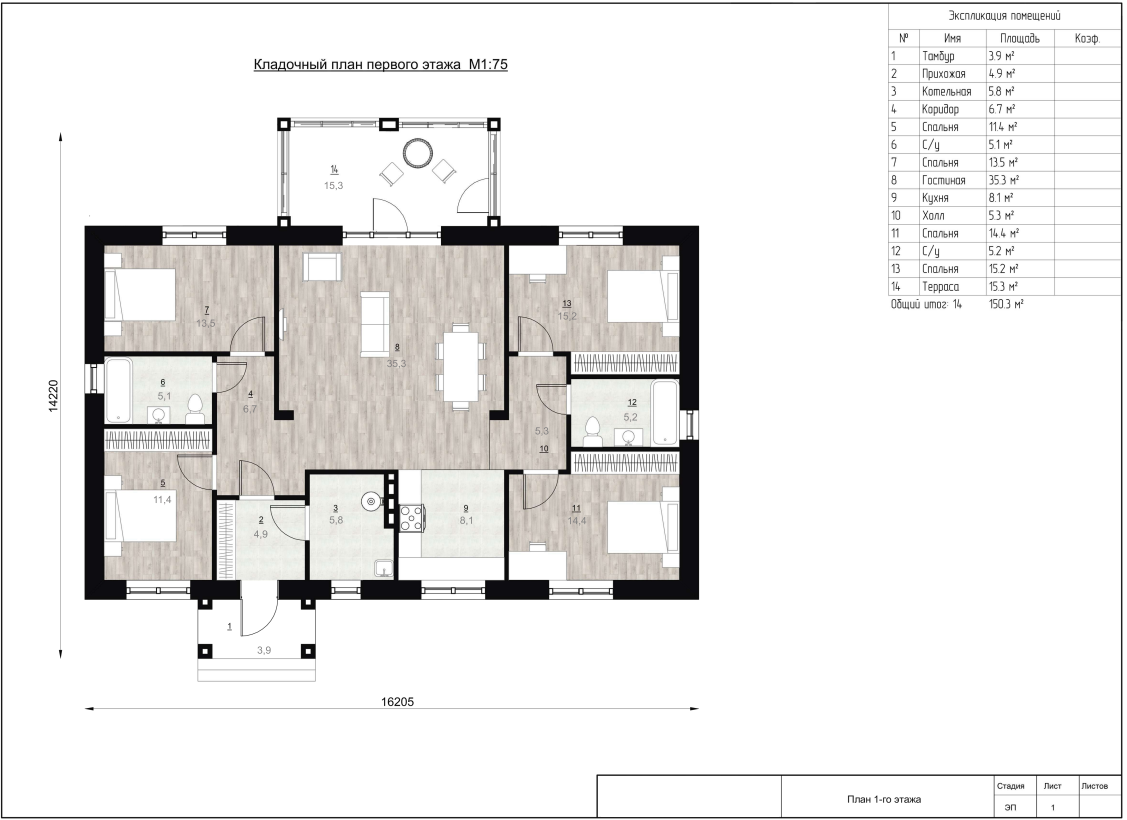
Площадь
150.3 м²
Размеры
16.2 х 14.2 м
  • 2санузла

  • терраса 15м2

  • Описание

    Характеристики

    Тип дома Каменные дома
    Общая площадь дома, м² 150.3
    Размеры дома, м 16.2 х 14.2
    Количество этажей 1
    Количество спален 4
    Количество санузлов 2
    Площать кухни 43.4
    Площать террасы 15
  • Планировка

    Хотите изменить планировку?

    Это совсем просто! Назначьте встречу с нашим архитектором, на основании ваших идей он создаст индивидуальную планировку.

Что входит в стоимость

      • Фундамент (тип фундамента определяется по результатам проведенных геодезических и геологических исследований)

      • Закладные под коммуникации

      • Приемка инженером технического надзора

      • Рабочий проект (АР, КР)

      • Стенокомплект

      • Устройство армирующего пояса

      • Теплая кладочная смесь (перлитовый раствор)

      • Доставка стенового комплекта

      • Сборка стенового комплекта

      • Приемка инженером технического надзора

      • Покрытие кровли - металлочерепица с полимерным покрытием Satin

      • Крыша конструкции “Ферма”

      • Утепление 250 мм UMATEX Termo

      • Универсальная диффузионная мембрана

      • Пароизоляционная пленка

      • Комплектующие, фурнитура

      • Трубчатая система снегозадержания

      • Техническая вентиляция

      • Приемка инженером технического надзора

      • ПВХ-профиль 70 мм и фурнитура

      • Комплектующие

      • Стеклопакеты энергосберегающие многофункциональные

      • Входная дверь

      • Монтаж

      • Приемка инженером технического надзора

      • Организация проживания рабочих (бытовка)

      • Организация биотуалета

      • Подключение бытовки к электричеству

      • Вывоз мусора

Менеджер
Смарт Арболит
Ведущий специалист
Консультация специалиста
Мы свяжемся с вами в течение 5 минут
Менеджер
Смарт Арболит
Ведущий специалист
Оставить заявку
Мы свяжемся с вами в течение 5 минут
Менеджер
Смарт Арболит
Ведущий специалист
Заказать расчет
Мы свяжемся с вами в течение 5 минут