Барнхаус 114

Площадь
114 м2 м²
Размеры
6,2х13,4 м м
  • 3комнаты

  • 1санузел

  • терраса 18,2м2

  • от 6 430 000 ₽
  • Описание

    База 5 750 00
        
    фундамент    
    стены    
    крыша с утеплением    
    кровля профнастил    
    окна ПВХ белые    
    снегозажержание    
    водосточная система        
    фасад     
    входная дверь    
        
        
    White box  8 200 000    
        
    внутренние коммуникации:    
    устройство канализации    
    устройство водопровода    
    теплый пол + радиаторы    
    электричество 50 точек    
        
    наружные коммуникации:    
    септик    
    щиток электрический    
    скважина 30м    

    Характеристики

    Тип дома Панельно-Каркасные дома
    Общая площадь дома, м² 114 м2
    Размеры дома, м 6,2х13,4 м
    Количество этажей 2
    Количество комнат 3
    Количество спален 3
    Количество санузлов 1
    Площать террасы 18,2
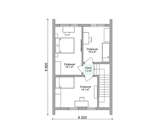
  • Планировка

    Хотите изменить планировку?

    Это совсем просто! Назначьте встречу с нашим архитектором, на основании ваших идей он создаст индивидуальную планировку.

Менеджер
Смарт Арболит
Ведущий специалист
Консультация специалиста
Мы свяжемся с вами в течение 5 минут
Менеджер
Смарт Арболит
Ведущий специалист
Оставить заявку
Мы свяжемся с вами в течение 5 минут
Менеджер
Смарт Арболит
Ведущий специалист
Заказать расчет
Мы свяжемся с вами в течение 5 минут